call (+381) 21 427 088 location_on Miroslava Antića 7, 21000 Novi Sad mail info(a)totalnekretnine.rs

Šestosoban stan PRODAJA - NOVI SAD - TELEP

IDS: 1100609

136.000 €

INFORMACIJE O NEKRETNINI

IDS: 1100609
Tip: Stan
Površina: 49 m²
Cena: 136.000 €
Cena po m²: 2.775,51 €
Grad/mesto: NOVI SAD
Odrednica: TELEP
Soba: 6
Sprat: 1 od 2

DODATNE INFORMACIJE

Grejanje: Centralno grejanje toplotne pumpe
Terasa: check
Pozicija: dvoriste
Lift: close
Parking: check
Useljiv: check
Uknjiženo: check
Godina izgradnje: 2020.

Registar posrednika broj 046

Opis nekretnine

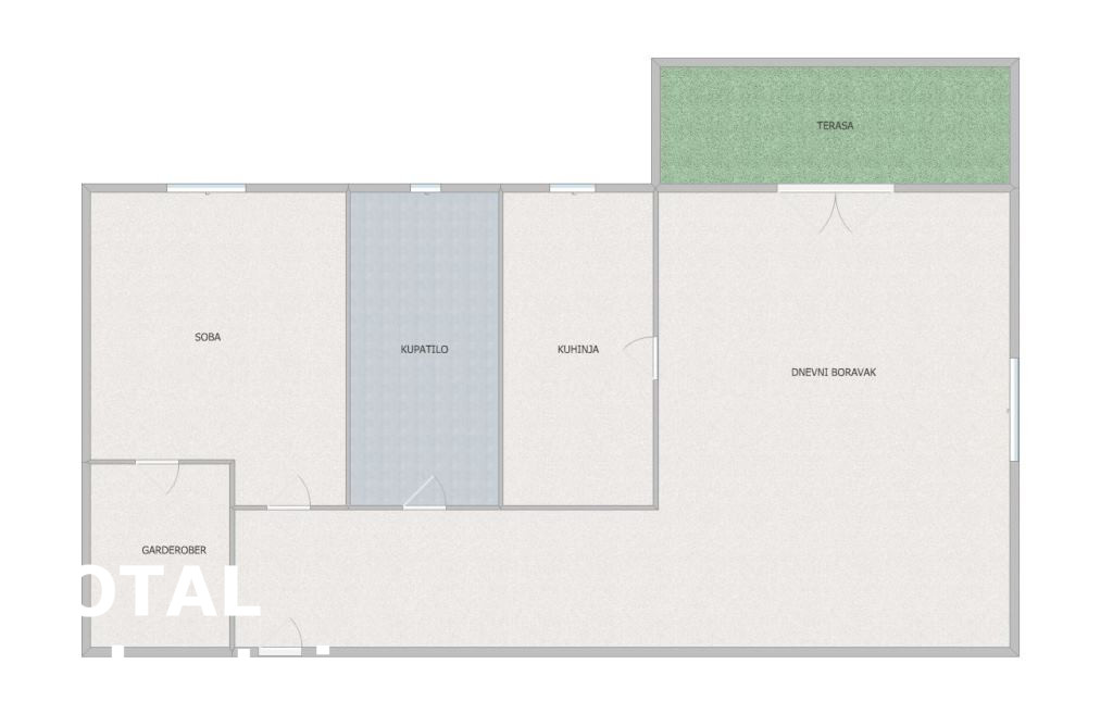
NOVO, MIRNO, PARKING ,GRATIS KROVNA TERASA 50m2, UKNJIŽEN. Agencijska oznaka 1100609. U ceni nije uračunata agencijska provizija 3%. Retko u prodaji ovako lepa nekretnina! Objekat je sa pet stanova , noviji , sa parkingom za svaki stan , sa terasom od 50m2 za svaki stan ....Stan je od 49m2 na prvom spratu, savršenog rasporeda . Spavaća soba sa prostranim , ozidanim garderoberom, kupatilo sa svojim prozorom, kuhinja odvojena sa prozorom, dnevni boravak dobro osvetljen i terasa dvorišno orjentisana. Na korišćenje stan ima parking mesto i terasu na ploči zgrade od 50m2. Osećaj stanovanja kao van grada. Okruženje je mirno, ulica nije prometna. Drvo se nalazi pored prozora dnevne sobe. Nekretnina uknjižena i bez tereta . Za više informacija pozvati na 0641709174 Mila.

Kontaktirajte agenta

Mila Lukovac

Agent sa višegodišnjim iskustvom u posredovanju prilikom kupoprodaje nekretnina.

businessTotal nekretnine

emailinfo@totalnekretnine.rs

call0641709174

Kontaktirajte nas

Zainteresovani ste za ovu nekretninu ili imate pitanja u vezi sa njom? Kontaktirajte nas na email putem forme.

Slične nekretnine

ŽELITE DA OGLASITE VAŠU NEKRETNINU?

Ili ste u potrazi za određenom nekretninom?

call

POZOVITE NAS

021 427 088

arrow_upward